1_img_f_2717_160401_06_janzer-1200x900
2_img_f_2717_160401_02_janzer-1200x900
3_img_f_2717_160401_03_janzer-1200x900
4_img_f_2717_160401_09_janzer-1200x900
5_img_f_2717_160401_12_janzer-1200x900
6_img_f_2717_160401_14_janzer-1200x900
7_img_f_2717_160401_08_janzer-1200x900
8_img_f_2717_160401_04_janzer-1200x900
9_img_f_2717_160401_15_janzer
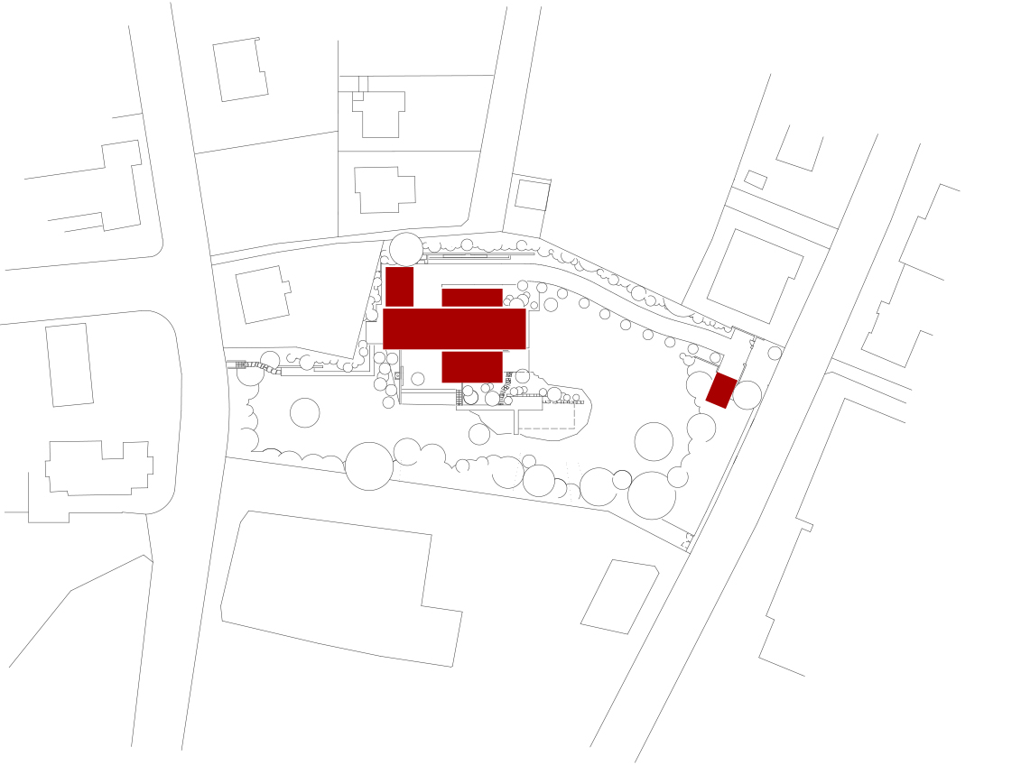
Lageplan
2717_lageplan-1200x720

Haus S°1

Wohnhaus
„Ein großzügiges, modernes, architektonisch ansprechendes Wohnhaus, aber keine Glaskiste“, ein wesentlicher Bauherrenwunsch führt im Laufe des Entwurfsprozesses zu einer Stadtvilla auf einer Geländeebene innerhalb eines Hanggrundstücks, bestehend aus zwei rechtwinklig zueinander versetzten, jedoch im Gleichgewicht befindlichen Baukörpern. Beide Gebäudeteile werden durch unterschiedliche Fassadengestaltung betont und erhalten jeder für sich Ihre Eigenständigkeit.

Das Erdgeschoss als Gebäudesockel mit einem Wechsel aus geschlossenen, massiven Fassaden und offenen Glasflächen stehen für Offenheit und Räume der Familie und deren Gäste / Besucher.

Das nach Süden auskragende Obergeschoss mit seiner überwiegenden Lochfassade und geschlossenen, großflächigen Fassadenbekleidungen kennzeichnen die dahinterliegenden privateren Bereiche.
Im Aussenbereich führt die lange Zufahrt zu einem dem Haus angemessenen Vorplatz am Hauseingang, welcher durch die Gebäudekanten des Wohnhauses und des rechtwinklig angeordneten Garagentrakts räumlich bestimmt ist.
Im Garten setzen sich die ruhigen, strengen Grundrissformen über die Terrassen und den Tiefhof des Untergeschosses bis zum Schwimmteich fort und lösen sich dann im Freiraum des Gartens, der „Natur“ auf.

Bauherr
Privat

Leistungen
Architektur Gebäude
Außenanlagen

Fertigstellung
2013

Standort
Aalen